立即提交









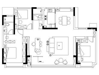
戶型方案解析
調整玄關位置,預留空間定制玄關柜,增加儲物區。客廳與陽臺打通,沙發后方增加水吧臺區域,也發揮著簡餐區的功能。主臥室一側預留空間用來放置嬰兒床,滿足個性化需求。
免費獲取設計案例
咨詢獲取全面報價









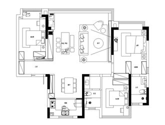
戶型方案解析
入戶過道讓渡部分空間給南次臥,優化布局結構。6.3米橫廳與陽臺全部打通,分別打造成客廳與書房,實現一廳多用。主臥室利用主衛與睡眠區之間的過道,定制步入式衣帽間,增加儲物空間。北次臥將陽臺擴充進來,增加學習區。
免費獲取設計案例
咨詢獲取全面報價










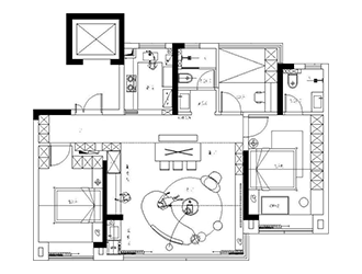
戶型方案解析
三室兩廳戶型,擁有獨立入戶空間。保留8.2米大開間橫廳布局,并入陽臺打通,客廳與書房做功能融合,互動性強,視野開闊,居住舒適度高。主臥室增加了開放式衣帽間,做套房布局,提高生活品質。原北次臥面積偏小,向外擴容,提高空間利用率。
免費獲取設計案例
咨詢獲取全面報價
立即預約設計師
免費獲取設計案例
立即預約施工團隊
咨詢獲取全面報價
預約參觀工藝間
免費獲取設計案例
立即預約
*為了您的利益以及我們的口碑,您的利益將被嚴格保護
短信報價價格僅供參考,實際裝修價格以人工報價為準
免費報價電話