我們猜測您是在合肥站點擊進入>>
選擇城市
立即提交










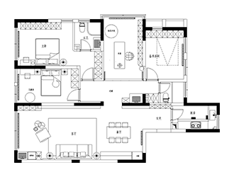
戶型方案解析
拆掉部分多余的墻體,重新優化布局和動線。客衛改成干區外移的布局,避免墻體遮擋視線,增強空間的開闊感。兩間朝南的臥室均讓渡出部分空間給到過道,優化生活動線。書房改成了開放式,采光更優渥。
免費獲取設計案例
咨詢獲取全面報價









戶型方案解析
從主臥讓渡部分空間給南次臥,布局與動線更加規整、流暢。拆墻改雙面柜設計,同時兼顧隔斷與收納雙重功能。北次臥向外擴充,增加可利用面積。主臥室與旁邊的小次臥打通,形成多功能套房布局。
免費獲取設計案例
咨詢獲取全面報價
立即預約設計師
免費獲取設計案例
立即預約施工團隊
咨詢獲取全面報價
預約參觀工藝間
免費獲取設計案例
立即預約
*為了您的利益以及我們的口碑,您的利益將被嚴格保護
短信報價價格僅供參考,實際裝修價格以人工報價為準
免費報價電話