我們猜測您是在合肥站點擊進入>>
選擇城市
立即提交







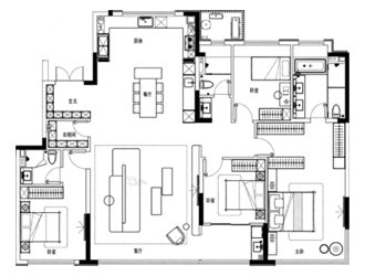
戶型方案解析
獨立門廳,空間寬敞開闊,L型玄關柜更實用。增加了獨立衣帽間。南次臥保留獨衛,保護生活隱私。餐島一體的設計豐富了使用功能,迎合居者對高品質生活的追求。客衛改成了三分離,使用更方便。將陽臺擴充進主臥,增加休閑區域。
免費獲取設計案例
咨詢獲取全面報價





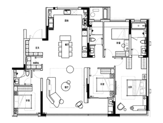
戶型方案解析
陽臺擴充進客廳,優化布局,空間更開闊通透。餐島一體,并做半開放式廚房,動線流暢,強化不同功能區間的互動。主臥室增加了過道式的衣帽間,增加儲物區,也避免空間浪費。
免費獲取設計案例
咨詢獲取全面報價
立即預約設計師
免費獲取設計案例
立即預約施工團隊
咨詢獲取全面報價
預約參觀工藝間
免費獲取設計案例
立即預約
*為了您的利益以及我們的口碑,您的利益將被嚴格保護
短信報價價格僅供參考,實際裝修價格以人工報價為準
免費報價電話